DELTA GAS SERVICE SRL
COLLARI DISTANZIATORI RACI
COLLARI DISTANZIATORI RACI
COLLARI DISTANZIATORI TIPO C /D/ I
MOD. 13100 /C | TUBI DN 40-200 | H. 15 mm|
MOD. 13100 /D | TUBI DN 40-200 | H. 15 mm|
MOD. 13100 /I | TUBI DN 40-200 | H. 15 mm|
CARATTERISTICHE:
- Sistema modulare a corone componibili che permette ai distanziatori di coprire una larga gamma di diametri tubo, riducendo così anche le quantità di stoccaggio.
- Facilmente assemblabili, mediante il fissaggio manuale di un elemento con l’altro.
- Fissaggio mediante estremità dentate per un efficiente adattamento ad una larga gamma di diametri di tubazione.
- Interamente realizzati in polietilene ad alta densità (HDPE), non sono richieste parti metalliche di connessione.
- Basso coefficiente di frizione che agevola l’inserimento della condotta nella tubazione camicia.
- Progettati e testati per garantire un supporto continuo e duraturo al tubo condotta ed al suo contenuto.
- Garantiscono una protezione costante lungo tutta la circonferenza del tubo condotta.
- Garantiscono una lunga protezione contro la corrosione.
- Possono essere installati su tubi di acciaio, cemento, ferro o plastica.
MATERIALI - HDPE:
Carico di snervamento*:
≥ 25 N/mm2 (Prove in accordo a UNI EN ISO 527-2)
Allungamento a rottura*:
> 200% (Prove in accordo a UNI EN ISO 527-2)
Durezza shore D:
64 - ASTM D 2240
Temperatura min di impiego:
- 20°C (per applicazioni sotto i 5°C contattare Raci)
Temperatura min di stoccaggio:
- 5°C (per applicazioni sotto i 5°C contattare Raci)
Rigidità dielettrica:
> 37 kV/mm - ASTM D 149/64
Stabilizzazione UV:
Buona
| TIPO |
LUNGHEZZA mm |
LARGHEZZA (B) mm |
ALTEZZA (H) mm |
CAPACITÀ DI CARICO (kg) |
| C | 180 - 250 | 63 | 15 | 200 |
| D | 240 - 310 | 63 | 15 | 200 |
| I | 130 - 160 | 63 | 15 | 200 |
| ESTERNO CONDOTTA D.E. |
ELEMENTI COLLARE (PZ) |
DISTANZA RACCOMANDATA TRA GLI ANELLI (H elemento) |
| ø MIN | ø MAX | C | D | I | GAS mt | ACQUA mt |
| 42 | 52 | - | - | 1 | 1.5 | 1.5 |
| 58 | 80 | 1 | - | - | 1.5 | 1.5 |
| 81 | 99 | - | 1 | - | 1.5 | 1.0 |
| 100 | 133 | 1 | - | 1 | 1.5 | 1.0 |
| 134 | 170 | 1 | 1 | - | 1.0 | 1.0 |
| 171 | 200 | - | 2 | - | 1.0 | 1.0 |
COLLARI DISTANZIATORI TIPO A/B
MOD. 13100 /A | TUBI DN 50-250 | H. 19-36-50 mm|
MOD. 13100 /B | TUBI DN 50-250 | H. 19-36-50
- Sistema modulare a corone componibili che permette ai distanziatori di coprire una larga gamma di diametri tubo, riducendo così anche le quantità di stoccaggio.
- Facilmente assemblabili, mediante il fissaggio manuale di un elemento con l’altro.
- Fissaggio mediante estremità dentate per un efficiente adattamento ad una larga gamma di diametri di tubazione.
- Interamente realizzati in polietilene ad alta densità (HDPE), non sono richieste parti metalliche di connessione.
- Basso coefficiente di frizione che agevola l’inserimento della condotta nella tubazione camicia.
- Progettati e testati per garantire un supporto continuo e duraturo al tubo condotta ed al suo contenuto.
- Garantiscono una protezione costante lungo tutta la circonferenza del tubo condotta.
- Garantiscono una lunga protezione contro la corrosione.
- Possono essere installati su tubi di acciaio, cemento, ferro o plastica.
MATERIALI - HDPE:
Carico di snervamento*:
≥ 25 N/mm2 (Prove in accordo a UNI EN ISO 527-2)
Allungamento a rottura*:
> 200% (Prove in accordo a UNI EN ISO 527-2)
Durezza shore D:
64 - ASTM D 2240
Temperatura min di impiego:
- 20°C (per applicazioni sotto i 5°C contattare Raci)
Temperatura min di stoccaggio:
- 5°C (per applicazioni sotto i 5°C contattare Raci)
Rigidità dielettrica:
> 37 kV/mm - ASTM D 149/64
Stabilizzazione UV:
Buona
| TIPO | LUNGHEZZA UTILE mm | LARGHEZZA (B) mm | ALTEZZA (H) mm | CAPACITÀ DI CARICO (kg) |
| A | 113 - 128 | 100 | 19 -36 -50 | 180 |
| B | 95 - 110 | 100 | 19 -36 -50 | 180 |
| ESTERNO CONDOTTA D.E. | ELEMENTI COLLARE (PZ) | DISTANZA RACCOMANDATA TRA GLI ANELLI (H elemento) |
|
ø MIN |
ø MAX |
A | B | GAS mt | ACQUA mt |
| 55 | 64 | - | 2 | 2.0 | 2.0 |
| 60 | 70 | 1 | 1 | 2.0 | 2.0 |
| 68 | 77 | 2 | - | 2.0 | 2.0 |
| 85 | 98 | - | 3 | 2.0 | 2.0 |
| 90 | 106 | 1 | 2 | 2.0 | 1.5 |
| 98 | 116 | 3 | - | 2.0 | 1.5 |
| 118 | 132 | - | 4 | 2.0 | 1.5 |
| 125 | 140 | 1 | 3 | 2.0 | 1.5 |
| 140 | 158 | 4 | - | 1.5 | 1.5 |
| 158 | 180 | 2 | 3 | 1.5 | 1.5 |
| 178 | 200 | 5 | - | 1.5 | 1.5 |
| 200 | 240 | - | 7 | 1.5 | 1.5 |
| 215 | 242 | 6 | - | 1.5 | 1.5 |
| 239 | 272 | 6 | 1 | 1.5 | 1.0 |
| 245 | 281 | 7 | - | 1.5 | 1.0 |
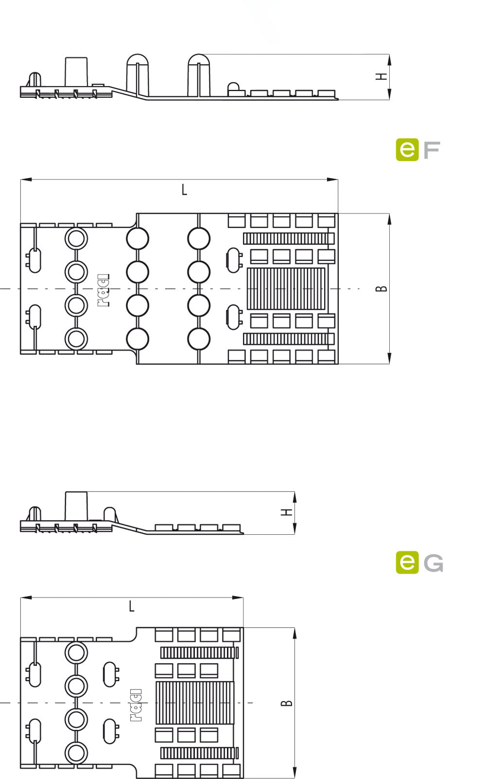
COLLARI DISTANZIATORI TIPO F/G
MOD. 13100 /F | TUBI DN 100-500 | H. 25-41-60-75 mm|
MOD. 13100 /G | TUBI DN 100-500 | H. 25-41-60 mm|
- Sistema modulare a corone componibili che permette ai distanziatori di coprire una larga gamma di diametri tubo, riducendo così anche le quantità di stoccaggio.
- Facilmente assemblabili, mediante il fissaggio manuale di un elemento con l’altro.
- Fissaggio mediante estremità dentate per un efficiente adattamento ad una larga gamma di diametri di tubazione.
- Interamente realizzati in polietilene ad alta densità (HDPE), non sono richieste parti metalliche di connessione.
- Basso coefficiente di frizione che agevola l’inserimento della condotta nella tubazione camicia.
- Progettati e testati per garantire un supporto continuo e duraturo al tubo condotta ed al suo contenuto.
- Garantiscono una protezione costante lungo tutta la circonferenza del tubo condotta.
- Garantiscono una lunga protezione contro la corrosione.
- Possono essere installati su tubi di acciaio, cemento, ferro o plastica.
- Altezze 25 e 41mm omologate in accordo al protocollo SNAM RETE GAS (specifica GASD A 09.01.06 e GASD C 09.06.00).
- Serraggio con pinza tipo C90 per altezze fino a 75mm.
MATERIALI - HDPE:
Carico di snervamento*:
≥ 25 N/mm2 (Prove in accordo a UNI EN ISO 527-2)
Allungamento a rottura*:
> 200% (Prove in accordo a UNI EN ISO 527-2)
Durezza shore D:
64 - ASTM D 2240
Temperatura min di impiego:
- 20°C (per applicazioni sotto i 5°C contattare Raci)
Temperatura min di stoccaggio:
- 5°C (per applicazioni sotto i 5°C contattare Raci)
Rigidità dielettrica:
> 37 kV/mm - ASTM D 149/64
Stabilizzazione UV:
Buona
| TIPO | LUNGHEZZA UTILE mm | LARGHEZZA (B) mm | ALTEZZA (H) mm | CAPACITÀ DI CARICO (kg) |
| F | 197 - 237 | 130 | 25 -41 -60 -75 | 500 |
| G | 91 - 129 | 130 | 25 -41 -60 | 500 |
| ESTERNO CONDOTTA D.E. | ELEMENTI COLLARE (PZ) | DISTANZA RACCOMANDATA TRA GLI ANELLI (H elemento) |
| ø MIN | ø MAX | F | G | GAS mt | ACQUA mt |
| 92 | 115 | 1 | 1 | 2.5 | 2.5 |
| 116 | 152 | 2 | - | 2.5 | 2.5 |
| 153 | 188 | 2 | 1 | 2.5 | 2.0 |
| 189 | 224 | 3 | - | 2.5 | 2.0 |
| 225 | 260 | 3 | 1 | 2.0 | 2.0 |
| 261 | 295 | 4 | - | 2.0 | 2.0 |
| 296 | 313 | 4 | 1 | 2.0 | 2.0 |
| 314 | 376 | 5 | - | 2.0 | 1.5 |
| 377 | 446 | 6 | - | 2.0 | 1.5 |
| 477 | 528 | 7 | - | 2.0 | 1.5 |
Impossibile caricare la disponibilità di ritiro
